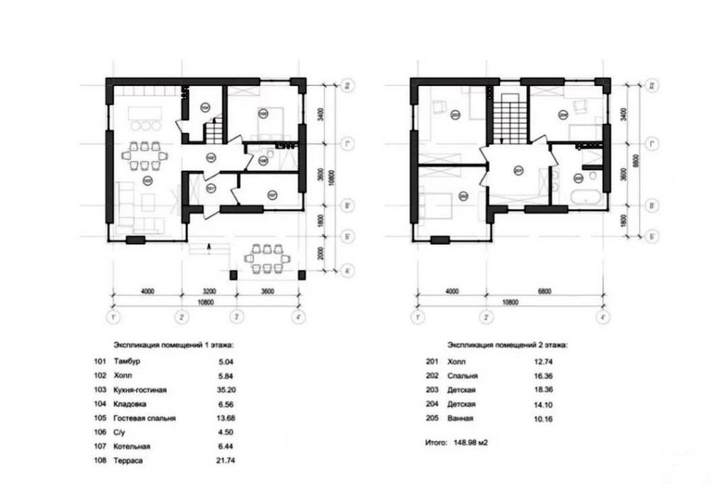
- 148 м²
- Площадь
- 2
- Этажность
- 5 сот
- Площадь участка
9 500 000 ₽
64 190 ₽ за м²
ID объявления 1610104
Поделиться
Добавить в избранное
Продаю новый 2 эт. кирпичный дом 148 кв.м. На 1 этаже: прихожая, котельная, с/у, гостевая спальня и кухня-гостиная, витражные окна, терраса. На 2 этаже: 3 спальни, с/у, гардеробная. Состояние - под чистовую отделку. Двор огорожен и отсыпан щебнем, ролл-ворота. Грунтовых вод нет. Улица асфальтирована и освещена. Рядом центральный рынок, городская больница, школа, музыкальная школа, детсад и Храм Святой Троицы. Подходит любой вид расчета..
Дата обновления: 25 октября 2025